Cerramiento madera-aluminio

Astroclim

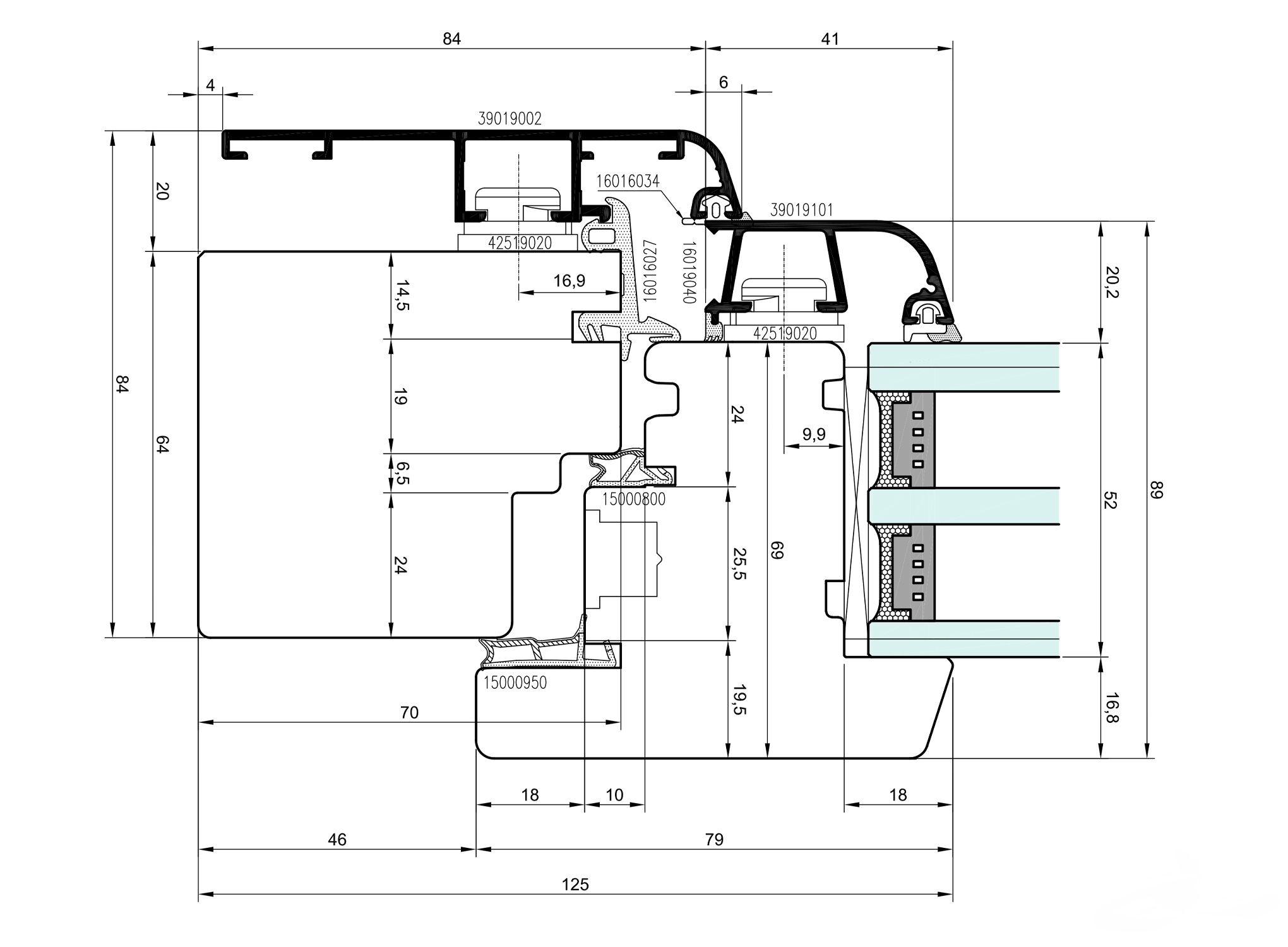
- Perfil marco de 70x84mm
- Perfil de hoja de 90mm de grosor
- Capacidad de vidrio de 48-54mm
- Triple junta de estanqueidad
- Pino laminado Finger, Castaño laminado finger
- Sistema de herraje GU, de alta calidad para cualquier tipo de apertura y seguridad
- Protección hidrófugo en cualquiera de nuestros acabados
- Aluminio exterior en varios acabados
- Posibilidad de añadir:
      - Contraventana interior o exterior
      - Persiana con monobloc motorizado o manual
      - Mosquitera
      - Aireadores