Alta eficiencia sin mantenimiento

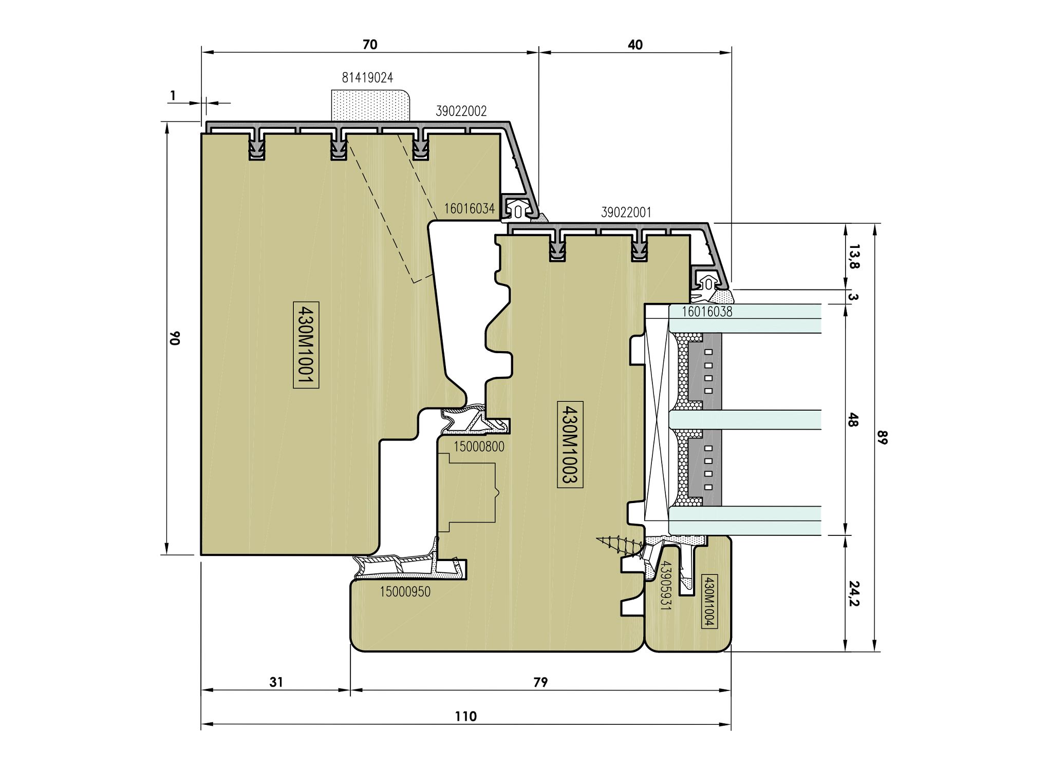
Hermod 89 Plus

- Perfil marco de 70x90mm
- Perfil de hoja de 89mm de grosor
- Capacidad de vidrio de 48-54mm
- Triple junta de estanqueidad
- PinoLaminado Finger, CastañoLaminado Finger
- Sistema de herraje GU, de alta calidad para cualquier tipo de apertura y seguridad
- Protección interior hidrófugo en cualquiera de nuestros acabados
- Aluminio exterior en varios acabados
- Posibilidad de añadir:
      - Contraventano interior 
      - Persiana con monobloc motorizado o manual
      - Mosquitera
      - Aireadores

La Hermod 89 Plus, con triple vidrio de baja emisión, puede alcanzar un valor de transmitancia térmica inferior a 0,97 Uw, lo que hace posible que pueda ser instalada en viviendas de alta eficiencia energética y Passivhaus. Además, en exterior, incorporamos aluminio para olvidarnos de su mantenimiento.