Cerramiento sin mantenimiento

Hermod 69

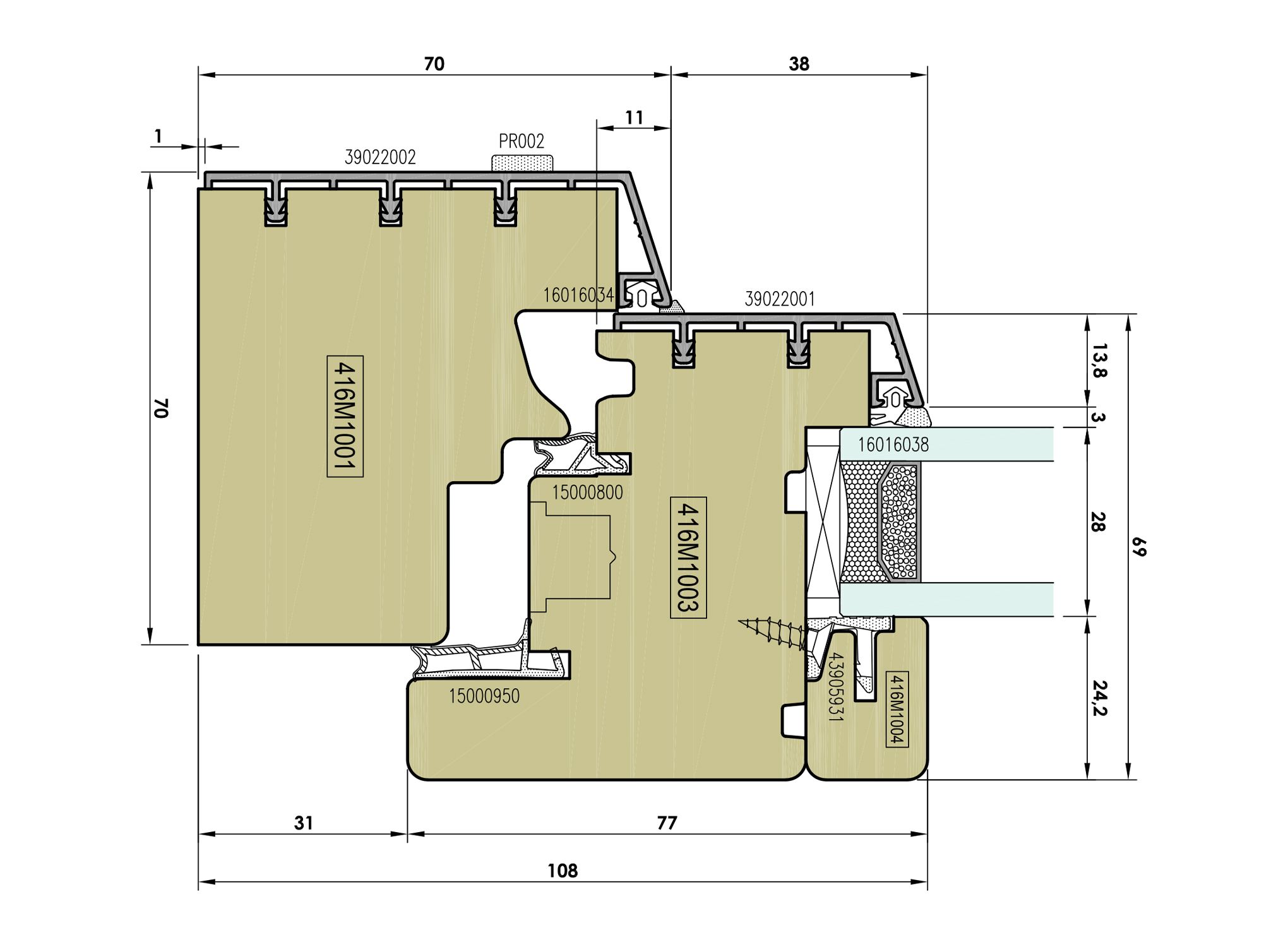
- Perfil marco 70x70 mm
- Perfil de hoja de 69 mm de grosor
- Capacidad de vidrio de 28-34 mm
- Triple junta de estanqueidad
- PinoLaminado Finger, CastañoLaminado Finger
- Sistema de herraje GU de alta calidad y para cualquier tipo de apertura y seguridad
- Protección interior hidrófugo en cualquiera de nuestros acabados 
- Aluminio exterior en varios acabados
- Posibilidad de añadir:
        - Contraventano interior
        - Persiana con monobloc motorizado o manual   
        - Mosquitera
        - Aireadores

La Hermod 69, con doble vidrio de baja emisión, puede alcanzar un valor de transmitancia térmica de 1,41 Uw, lo que hace posible instalarla en cualquier tipo de vivienda y sin necesidad de ningún tipo de mantenimiento exterior.

Otro tipo de ventana Hermod 69

Hermod 69
corredera elevadora